Дом 948.9 м2 в поселке Жуковка XXI

Россия, Московская область, Одинцовский городской округ, деревня Жуковка, коттеджный посёлок Жуковка 21

738 375 000
  • $
Лот 108503
посёлок Раздоры
Площадь 948.9 м2
спален 3
Ванных комнат 4
Отделка Под чистовую/White box
Двухэтажный коттедж 948 кв.м в стиле Райт на ухоженном участке 0,5 Га в поселке с многоуровневой системой охраны - Жуковка 21.
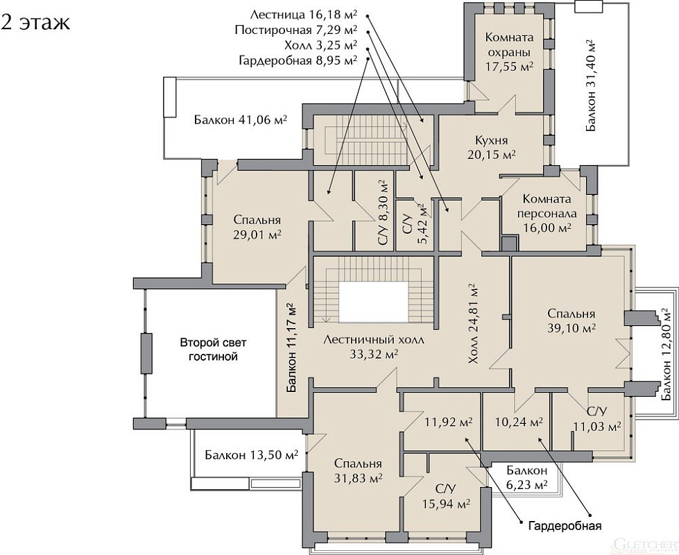
Планировка:
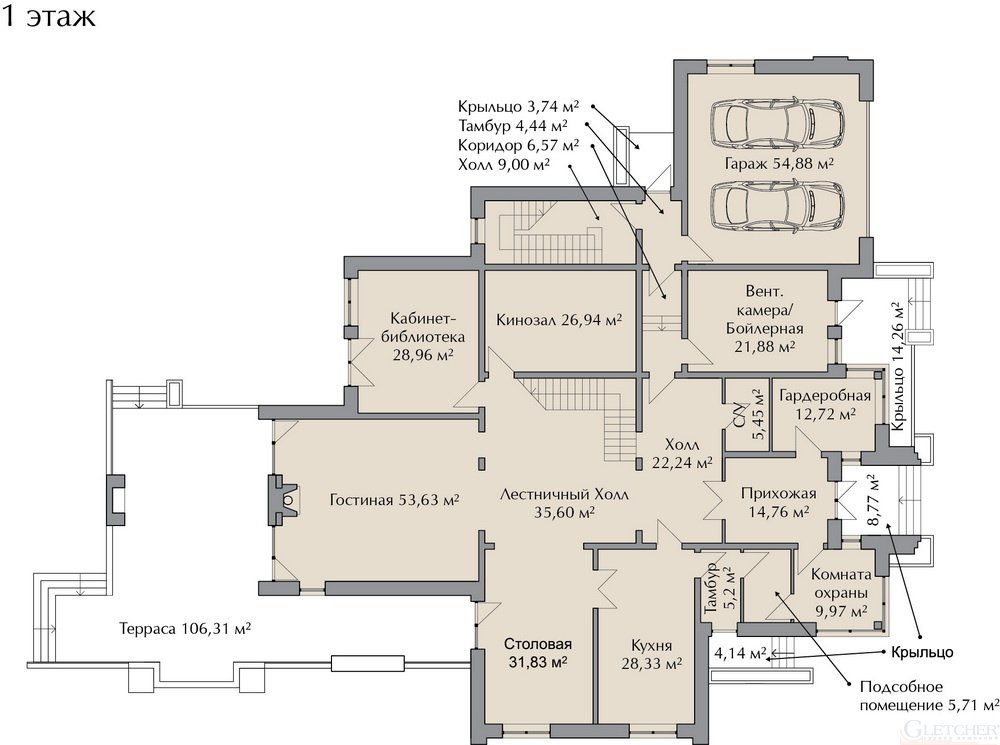
1 этаж: прихожая, гардеробная, комната охраны, с/у, бойлерная, гараж на 2 м/м, холл, двухсветная гостиная с выходом на просторную террасу, кухня, столовая, кабинет - библиотека, кинотеатр.
2 этаж: холл, балкон второго света, 3 спальни с балконами, ванными и гардеробными комнатами, блок для персонала (2 комнаты, кухня, с/у).
связаться с брокером +7 (495) 032-52-84
Похожие объекты в этом же поселке
110
Дом 1218.19 м2 # 003551
коттеджный посёлок Жуковка 21, деревня Жуковка, сельское поселение Барвихинское, Одинцовский район, Московская область
Посёлок: Жуковка XXI
Площадь: 1218.19 м²
Участок: 50 соток
Отделка: С отделкой с мебелью
939 400 000
  • $
Дом 769.87 м2 # 044671
Россия, Московская область, Одинцовский городской округ, деревня Жуковка, коттеджный посёлок Жуковка 21
Посёлок: Жуковка XXI
Площадь: 769.87 м²
Участок: 50 соток
Отделка: С отделкой с мебелью
899 250 000
  • $
Дом 1065 м2 # 109695
Россия, Московская область, Одинцовский городской округ, деревня Жуковка, коттеджный посёлок Жуковка 21
Посёлок: Жуковка XXI
Площадь: 1065 м²
Участок: 50 соток
Отделка: С отделкой с мебелью
900 000 000
  • $
Дом 989.99 м2 # 020945
коттеджный посёлок Жуковка 21, деревня Жуковка, сельское поселение Барвихинское, Одинцовский район, Московская область
Посёлок: Жуковка XXI
Площадь: 989.99 м²
Участок: 50 соток
Отделка: С отделкой без мебели
948 750 000
  • $
Похожие объекты в других поселках
110
Дом 1200 м2 # 182394
Россия, Московская область, Одинцовский район, сельское поселение Барвихинское, деревня Жуковка, территория Парк Вилл
Посёлок: ParkVille Жуковка
Площадь: 1200 м²
Участок: 38 соток
Отделка: С отделкой с мебелью
740 000 000
  • $
Дом 1058 м2 # 182145
Россия, Московская область, Одинцовский городской округ, деревня Жуковка, коттеджный посёлок Жуковка Академическая, Академическая улица
Посёлок: Жуковка Академическая
Площадь: 1058 м²
Участок: 20 соток
Отделка: С отделкой с мебелью
590 000 000
  • $
Дом 830 м2 # 169271
Московская область, Одинцовский городской округ, деревня Жуковка, коттеджный посёлок Жуковка-3
Посёлок: Жуковка-3
Площадь: 830 м²
Участок: 30 соток
Отделка: Без отделки/Shell and core
738 108 890
  • $
Дом 865 м2 # 134007
Россия, Московская область, Одинцовский городской округ, посёлок дачного хозяйства Жуковка, коттеджный посёлок Жуковка-2
Посёлок: Жуковка 2
Площадь: 865 м²
Участок: 25 соток
Отделка: С отделкой с мебелью
3 500 000 / мес
951 171 250
аренда
  • $
Дом 850 м2 # 019672
Россия, Московская область, Одинцовский городской округ, посёлок дачного хозяйства Жуковка, коттеджный посёлок Жуковка-2
Посёлок: Жуковка 2
Площадь: 850 м²
Участок: 35 соток
Отделка: С отделкой с мебелью
1 800 000 / мес
601 140 230
аренда
  • $
Дом 790 м2 # 106205
Россия, Московская область, Одинцовский городской округ, деревня Жуковка
Посёлок: Жуковка
Площадь: 790 м²
Участок: 32 соток
Отделка: С отделкой с мебелью
3 804 685 / мес
608 749 600
аренда
  • $
Дом 1200 м2 # 108880
Россия, Московская область, Одинцовский городской округ, деревня Жуковка, территория Парк Вилл
Посёлок: ParkVille Жуковка
Площадь: 1200 м²
Участок: 35 соток
Отделка: С отделкой с мебелью
951 171 250
  • $
Дом 1000 м2 # 018003
коттеджный посёлок Ландшафт, деревня Жуковка, сельское поселение Барвихинское, Одинцовский район
Посёлок: Ландшафт
Площадь: 1000 м²
Участок: 19.5 соток
Отделка: С отделкой с мебелью
913 124 400
  • $
Дом 1000 м2 # 025558
Россия, Московская область, Одинцовский городской округ, деревня Жуковка, коттеджный посёлок Ландшафт
Посёлок: Ландшафт
Площадь: 1000 м²
Участок: 50 соток
Отделка: С отделкой с мебелью
3 043 748 / мес
798 983 850
аренда
  • $